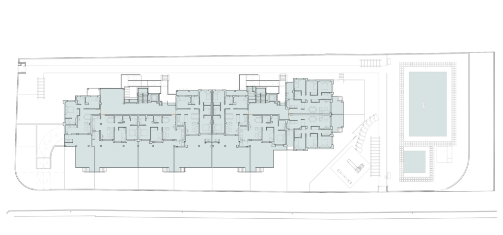
El Residencial Victoria I está situado en la segunda línea de la playa de Les Marines de Denia.
Consta de una planta de semisótano, donde se encuentran los aparcamientos, los trasteros y las instalaciones, cuatro plantas en altura en las que se distribuyen veintisiete viviendas de dos y tres dormitorios en dos escaleras, jardines y piscinas.
Las plantas bajas disponen de jardines privados mientras que los áticos tienen acceso a los solariums privativos situados en la planta de cubiertas
Todas las viviendas disponen de ventilación cruzada, lo que mejora las condiciones térmicas de los espacios interiores y reduce el consumo energético de refrigeración.
Cuentan además con instalación de aerotermia de alta eficiencia energética.








