El Residencial Victoria III está situado en las proximidades del área comercial Les Fonts, en la carretera de Les Marines de Denia.
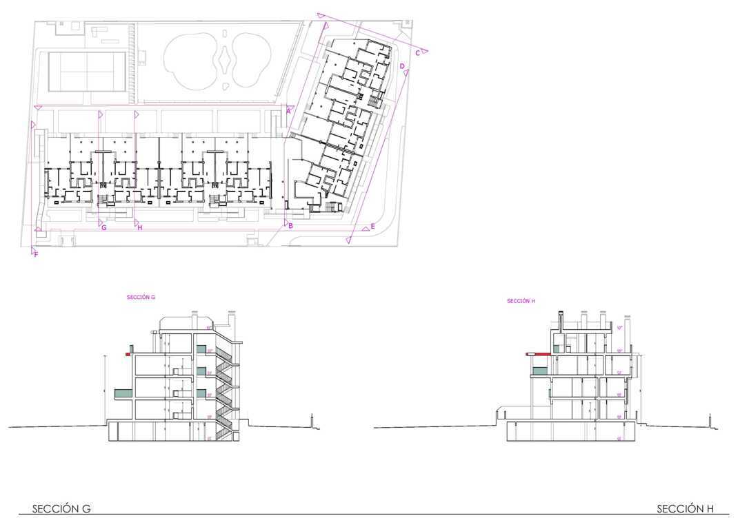
Consta de una planta de semisótano, donde se encuentran los aparcamientos, los trasteros y las instalaciones, cuatro plantas en altura en las que se distribuyen cuarenta y nueve viviendas en cuatro escaleras, jardines y pistas de pádel y piscinas.
Todas las viviendas disponen de grandes terrazas con vistas a las zonas comunes de la urbanización. Las plantas bajas cuentan con terrazas de mayores dimensiones o jardines de uso privado y los áticos tienen acceso a los solariums privativos situados en la planta de cubiertas
Todas las viviendas disponen de ventilación cruzada, lo que mejora las condiciones térmicas de los espacios interiores y reduce el consumo energético de refrigeración.
Cuentan además con instalación de aerotermia de alta eficiencia energética.




