RESIDENCIAL VILLAS VICTORIA II

  • Els Poblets
  • 2019
  • Superficie construida 456 m2
  • 4 viviendas unifamiliares

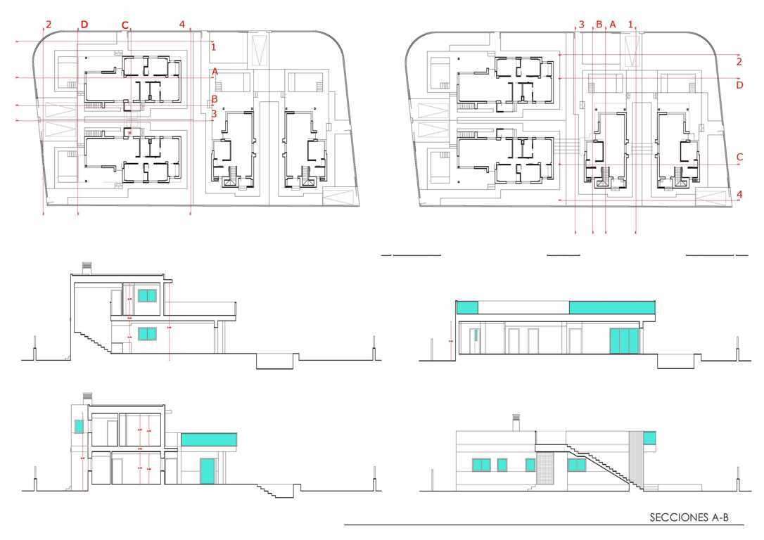
La promoción de viviendas unifamiliares Villas Victoria II se encuentran en la zona conocida como Partida de Barranquets de Els Poblets.

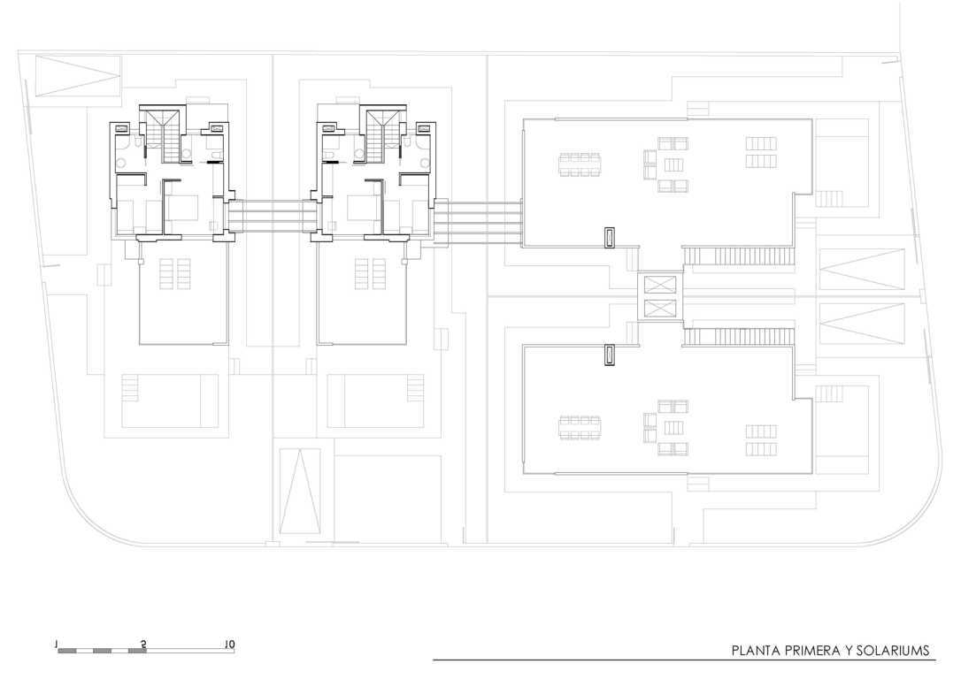
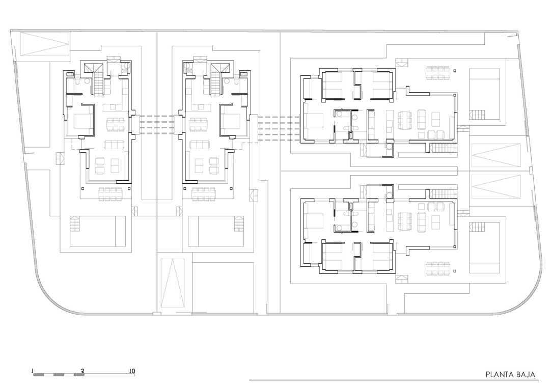
Consta de cuatro viviendas, dos de una planta y solárium en la planta de cubierta y otras dos viviendas de dos plantas.

Todas las viviendas disponen de piscina y amplias zonas ajardinadas privativas.

Siempre atentos a la mejora de la calidad térmica de los espacios interiores, las orientaciones son las mejores permitidas por la parcela, las viviendas cuentan con ventilación natural cruzada e instalaciones de ventilación mecánica, aerotermia de alta eficiencia y disponen de carpinterías y vidrios de alto poder aislante. Los vidrios son del tipo bajo emisivo, lo que le confiere mayor poder aislante. Todo esto supone una mayor eficiencia energética de los cerramientos y un menor coste energético de la vivienda.

Arquitecto
José Martínez Gimeno

Colaboradora
María Martí Martínez. Estudiante de arquitectura

Arquitecto técnico
Julián Martínez Milán